SBOS787 August   2016 OPA657-DIE

PRODUCTION DATA.  

  1. 1Features
  2. 2Applications
  3. 3Description
  4. 4Electrostatic Discharge Caution
  5. 5Bare Die Information

Package Options

Mechanical Data (Package|Pins)
  • TD|0
Thermal pad, mechanical data (Package|Pins)
Orderable Information

Bare Die Information

DIE THICKNESS BACKSIDE FINISH BACKSIDE
POTENTIAL
BOND PAD
METALLIZATION COMPOSITION
BOND PAD
THICKNESS
15 mils. Silicon with backgrind VS- TiW/AlCu (0.5%) 1100 nm
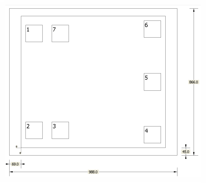
OPA657-DIE die1_bos596.gif

Bond Pad Coordinates in Microns(1)

DESCRIPTION PAD NUMBER X MIN Y MIN X MAX Y MAX
Inverting input 1 27 623 127 723
NonInverting input 2 27 53 127 153
N/C 3 181 53 281 153
Output 4 723 27 823 127
VS 5 723 337 823 439
VS+ 6 723 649 823 749
N/C 7 181 623 281 723
Substrate is VS–.